- 2
- Bedrooms
- 3
- Bathrooms
- false
- Garages
- 2520
- Sq Ft
- 1999
- Year Built
- 1592373
- MLS#
Private and peaceful waterfront estate of 27.63 acres set on 420' of frontage on Behr Lake (39 acres) in Burnett County, WI.
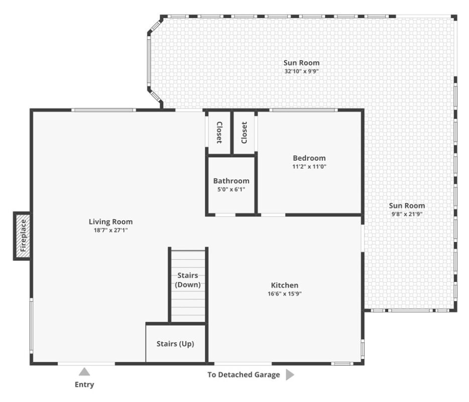
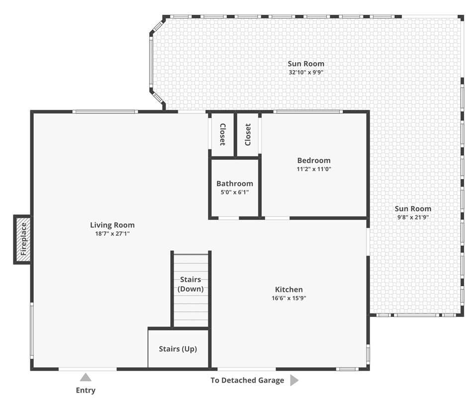
The heart of this property is a charming 2,400 sqft chalet-style cabin.
Step onto the expansive enclosed porch that welcomes you into both the open living/dining area, as well as the inviting eat-in kitchen.
The living space showcases soaring vaulted ceilings, oversized windows and a magnificent stone fireplace that serves as the cabin's centerpiece - featuring wood-burning capability on the main level and gas on the lower level.
The thoughtful three-level layout includes a private primary suite retreat on the upper level, while the walkout lower level offers a family room, full bathroom and versatile bonus room.
Additional property features: 5-car detached garage (30x72) w/ unfinished workshop and upper level, all plumbed for in-floor heat via a dedicated boiler house, 4-car pole bldg (36x72) w/ 12' high doors on a slab with electric service, large open shed (24x48) complete w/ its own drilled well and power, and finally an actual caboose! Check out the virtual tour and property walk-through video: upnorthtours.net/j1592373
Details
-
Property ID 1592373
-
Price $895,000
-
Property Size 2520 Sq Ft
-
Land Area 27.63 Acres
-
Bedrooms 2
-
Bathrooms 3
-
Rooms 14
-
Garages false
-
Garage Size 9
-
Year Built 1999
-
Property Status Active
-
Property Type Residential
Additional details
-
Property Type Single Family Residence
-
Style Chalet Alpine
-
Total Rooms 14
-
Half Baths 1
-
Living Area 2,425 sq ft
-
Above Grade Finished 1,512 sq ft
-
Below Grade Finished 913 sq ft
-
Lot Size 27.63 acres
-
Possession Close Of Escrow
-
Year Built 1999
-
Heating Forced Air, Radiant Floor
-
Cooling Central Air
-
Electric Circuit Breakers, Underground
-
Water Drilled Well
-
Sewer Septic Tank
-
Foundation Block, Poured
-
Construction Stone, Steel
-
Appliances Dryer, Dishwasher, Electric Water Heater, Microwave, Oven, Range, Refrigerator, Range Hood, Water Softener, Washer
-
Interior Features Ceiling Fans
-
Windows Window Coverings
-
Basement Full, Finished, Walk Out Access
-
Fireplace Two, Gas Log, Wood Burning
-
Exterior Features Dock
-
Patio & Porch Deck, Enclosed, Porch, Three Season
-
Parking Concrete, Driveway, Detached, Garage, Gravel
-
Garage Spaces 9
-
Other Structures Outbuilding, Other, See Remarks
-
Waterfront Lake
-
Water Frontage 420 ft
-
View Water
-
Property Tax $5,583.35 (2024)
-
HOA None
-
School District Spooner Area
-
County Burnett
-
Township Town of Scott
-
Directions From Hwy 70: North on County Rd H (9.8 mi) to a right (east) on County Rd A (1.2 mi) to a right (south) at shared driveway (0.6 mi) to the end. From Hwy 77: South on County Rd H (7.8 mi) to a left on County Rd A (1.2 mi) and same final directions.
-
Parcel Number 18411
-
Days on 1ReasonRealty.com 313
-
Original List Price $975,000
-
Previous Price $949,000
-
Listed Jun 10, 2025
-
Exclusions Sellers Personal
-
Legal Description LOTS 2-3 CSM V 6 P 282 (LOCATED IN GOV LOT 5) and GOV LOT 5 EXCEPT CSM 1313 VOL 6 P 282 & EXCEPT CSM 4400 VOL 24 P 52 (MFL CL 2012 23.18AC)
Mortgage Calculator
-
Down Payment
-
Loan Amount
-
Monthly Mortgage Payment





























































