- 2
- Bedrooms
- 2
- Bathrooms
- true
- Garages
- 2733
- Sq Ft
- 2008
- Year Built
- 1594958
- MLS#
RARELY does a property offer this level of refined utility paired with absolute serenity.
Nestled in Rusk County on 40 pristine acres, this custom barndominium is a sanctuary for those who value the quiet of the Wisconsin hardwoods.
[THE LAND]: Explore an extensive network of nearby county ATV/UTV trails, or enjoy hiking, hunting, or observing the abundant local wildlife near your own private pond, mature maples, or elevated box stand.
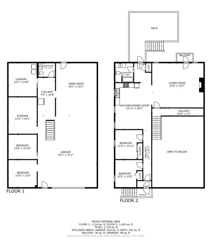
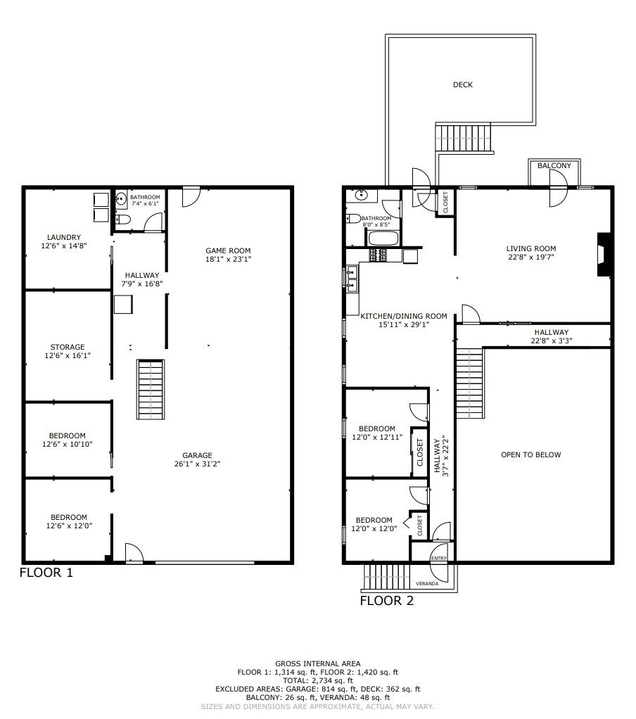
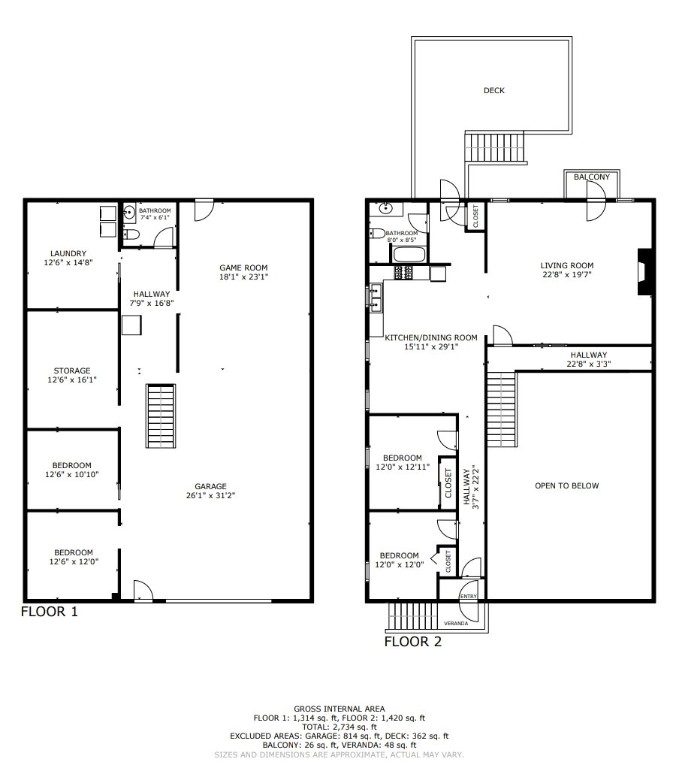
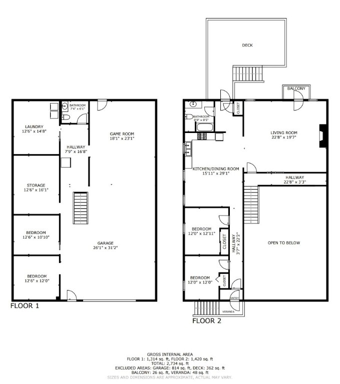
[THE RESIDENCE]: The upper level features a traditional living layout with defined spaces that create a cozy, home-like feel, complemented by the comfort of central air and a massive second-story deck with panoramic views.
[THE SHOP & ENTERTAINMENT HUB]: The main level is a masterpiece of utility, heated independently from the living quarters for maximum efficiency.
It features a fully furnished custom bar and jukebox area, two versatile bonus rooms behind a rustic barn door, and a massive 14’ overhead door to accommodate your largest rigs.
[EXTENSIVE UPDATES]: Every inch has been meticulously maintained and updated within the last 4 years.
Additional storage is plentiful with a 48x30 Quonset and an insulated, powered shed—perfect for a workshop or seasonal equipment.
[LOCATION]: Enjoy total seclusion with the convenience of being just 45 minutes from Eau Claire and less than a 2-hour drive from the Twin Cities.
Whether you are seeking a premier hunting retreat or a high-end home base for your hobbies, this move-in-ready estate is the ultimate headquarters for your Northwoods lifestyle.
Schedule your private tour today to experience the peace of Hogback Road.
Details
-
Property ID 1594958
-
Price $575,000
-
Property Size 2733 Sq Ft
-
Land Area 40 Acres
-
Bedrooms 2
-
Bathrooms 2
-
Rooms 12
-
Garages true
-
Garage Size 2
-
Year Built 2008
-
Property Status Active
-
Property Type Residential
Additional details
-
Property Type Single Family Residence
-
Style Other
-
Total Rooms 12
-
Half Baths 1
-
Living Area 2,349 sq ft
-
Above Grade Finished 2,349 sq ft
-
Lot Size 40 acres
-
Possession Close Of Escrow
-
Year Built 2008
-
Heating Forced Air
-
Cooling Central Air
-
Electric Circuit Breakers
-
Water Drilled Well
-
Sewer Holding Tank, Septic Tank
-
Foundation Poured, Slab
-
Construction Steel
-
Appliances Dryer, Dishwasher, Gas Water Heater, Microwave, Other, Oven, Range, Refrigerator, Range Hood, See Remarks, Washer
-
Patio & Porch Deck
-
Parking Attached, Garage, Garage Door Opener
-
Garage Spaces 2
-
Other Structures Other, Sheds, See Remarks
-
Property Tax $2,856.75 (2024)
-
HOA None
-
School District Chetek-Weyerhaeuser Area
-
County Rusk
-
Township Town of Rusk
-
Directions From Chetek: North on 2nd St./Sumner Ave for .5 miles, right on Pinegrove Ave 1.3 miles to left on Hogback, 5.2 miles property on left.
-
Parcel Number 030003720000
-
Days on 1ReasonRealty.com 224
-
Original List Price $589,900
-
Listed Sep 4, 2025
-
Exclusions Other-See Remarks
-
Legal Description SW SE 18-33-9 DOCUMENT # 368493
Mortgage Calculator
-
Down Payment
-
Loan Amount
-
Monthly Mortgage Payment










