- 3
- Bedrooms
- 4
- Bathrooms
- true
- Garages
- 3640
- Sq Ft
- 1969
- Year Built
- 1598422
- MLS#
Rare opportunity to enjoy a 1.4 acre private lot conveniently located in a prime west hill
location while benefiting from Wheaton township’s lower taxes! Pre-inspected!
This well-maintained, quality constructed house now has new windows and new
flooring making it the perfect opportunity for buyer to put their finishing touches on to
make it their own.
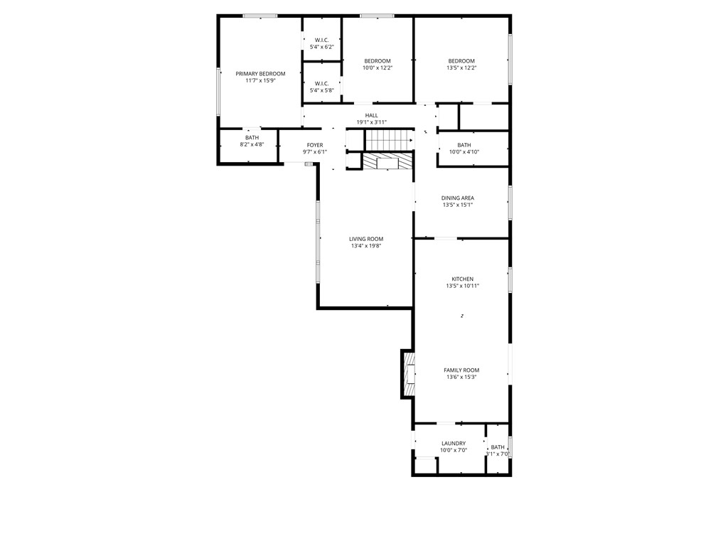
Great floor plan, first floor laundry, large closets, primary bedroom
with en-suite bathroom.
Patio doors off the back of the house take you outside to a
park-like backyard with a scenic and tranquil setting.
Updates include: 2025 All new flooring and windows (except LR window), 2024 water heater & sump pump, 2021 New Roof, 2017 New Septic (two drainfields)
Details
-
Property ID 1598422
-
Price $499,500
-
Property Size 3640 Sq Ft
-
Land Area 1.4 Acres
-
Bedrooms 3
-
Bathrooms 4
-
Rooms 14
-
Garages true
-
Garage Size 4
-
Year Built 1969
-
Property Status Active
-
Property Type Residential
Additional details
-
Property Type Single Family Residence
-
Style One Story
-
Stories 1
-
Levels One
-
Total Rooms 14
-
Half Baths 1
-
Living Area 2,808 sq ft
-
Above Grade Finished 1,820 sq ft
-
Below Grade Finished 988 sq ft
-
Lot Size 1.4 acres
-
Possession Close Of Escrow
-
Year Built 1969
-
Heating Forced Air
-
Cooling Central Air
-
Electric Circuit Breakers
-
Water Well
-
Sewer Septic Tank
-
Foundation Block
-
Construction Brick, Wood Siding
-
Appliances Dishwasher, Electric Water Heater, Microwave, Oven, Range
-
Basement Full, Partially Finished
-
Fireplace Two
-
Fencing Chain Link
-
Patio & Porch Concrete, Patio
-
Parking Asphalt, Attached, Driveway, Garage, Garage Door Opener
-
Garage Spaces 4
-
Property Tax $3,373.27 (2025)
-
HOA None
-
School District Chippewa Falls Area Unified
-
County Chippewa
-
Township Town of Wheaton
-
Directions Bridge Street N. to left on Elm Street to left on 124th Street or Tropicana to right on 65th Ave to house on left.
-
Parcel Number 22809-0132-70370001
-
Days on 1ReasonRealty.com 58
-
Original List Price $530,000
-
Listed Feb 17, 2026
-
Legal Description NWSW Lot 1 CSM #370 INV1 P513
Mortgage Calculator
Monthly
-
Down Payment
-
Loan Amount
-
Monthly Mortgage Payment









