10198 162nd Street, Chippewa Falls, WI 54729
4 beds · 4 baths (3 Full / 1 Half) · 4,342 sqft · $121/sqft · 0.65 acres · Built 2006 · 3-car garage
MLS# 1599231
About 10198 162nd Street, Chippewa Falls, WI 54729
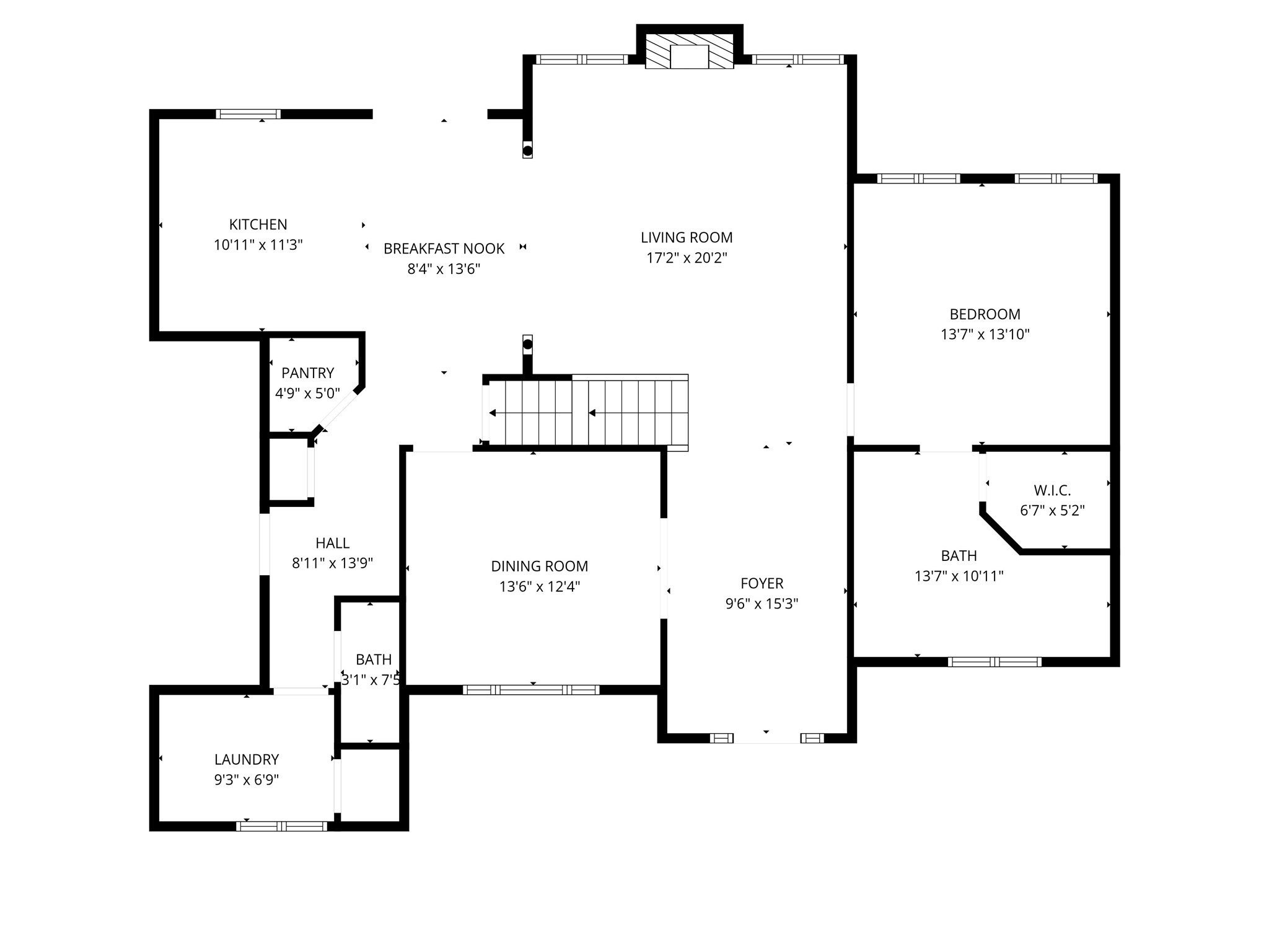
Located on the 14th tee of Lake Wissota Golf Course, this beautifully maintained 4 BD, 3.5 BA home offers the perfect blend of comfort, space & scenic surroundings.
Step inside to a welcoming layout filled with natural light & thoughtfully designed living spaces.
The main level features a spacious living area that flows into the kitchen, dining area & formal dining room, creating an ideal space for everyday living & entertaining.
A main floor primary suite offers convenience & privacy, along with a main floor laundry.
The upper level includes additional bedrooms, finished lower level expands your living options with a large family room, full bath & versatile spaces perfect for a home office, gym, or guest accommodations w/egress windows.
Located near the Old Abe State Trail, Lake Wissota State Park, and local dining, this home offers easy access to recreation while maintaining a quiet setting.
Home is Pre Inspected for Peace of Mind.
Schedule your showing today.
Property Details
- Style
- Two Story
- Stories
- 2
- Levels
- Two
- Above Grade Finished
- 2,768 sq ft
- Below Grade Finished
- 1,074 sq ft
- Possession
- Close Of Escrow
- Heating
- Forced Air
- Cooling
- Central Air
- Electric
- Circuit Breakers
- Water
- Well
- Sewer
- Septic Tank
- Foundation
- Poured
- Construction
- Aluminum Siding, Vinyl Siding
- Appliances
- Dishwasher, Disposal, Gas Water Heater, Microwave, Other, Oven, Range, Refrigerator, Range Hood, See Remarks
- Interior Features
- Ceiling Fans
- Windows
- Window Coverings
- Basement
- Full, Other, Partially Finished, See Remarks
- Fireplace
- Gas Log
- Exterior Features
- Sprinkler Irrigation
- Patio & Porch
- Deck, Open, Porch
- Parking
- Attached, Concrete, Driveway, Garage, Garage Door Opener
- HOA
- None
- School District
- Chippewa Falls Area Unified
- County
- Chippewa
- Township
- Town of Anson
- Directions
- Hwy 53 N to Hwy S E Left on 97th. Right on 162nd St., Yellow house on left.
- Parcel Number
- 22908153466540010
- Original List Price
- $549,900
- Exclusions
- Freezer, Sellers Personal
- Legal Description
- SEC 15, T 29 N, R 08 W GL10 EAGLE VIEW ESTATES LOT 10
- Listing Brokerage
- Woods & Water Realty Inc/Regional Office
Room Details
| Room | Area | Dimensions | Level | Flooring |
|---|---|---|---|---|
| Bathroom | 64 sq ft | 8 x 8 | Upper | Tile |
| Bathroom | 54 sq ft | 9 x 6 | Lower | Tile |
| Bathroom | 64 sq ft | 8 x 8 | Main | Tile |
| Bathroom | 140 sq ft | 14 x 10 | Main | Tile |
| Bedroom | 120 sq ft | 12 x 10 | Main | Carpet |
| Bedroom | 120 sq ft | 12 x 10 | Main | Carpet |
| Bedroom | 216 sq ft | 18 x 12 | Upper | Carpet |
| Bedroom | 196 sq ft | 14 x 14 | Lower | Carpet |
| Pantry | 25 sq ft | 5 x 5 | Main | Tile |
| Entry/Foyer | 160 sq ft | 16 x 10 | Main | Wood |
| Bonus Room | 169 sq ft | 13 x 13 | Lower | Carpet |
| Bonus Room | 130 sq ft | 13 x 10 | Lower | Carpet |
| Laundry Room | 63 sq ft | 9 x 7 | Main | Tile |
| Family Room | 540 sq ft | 36 x 15 | Lower | Carpet |
| Dining Area | 144 sq ft | 18 x 8 | Main | Tile |
| Dining Room | 112 sq ft | 14 x 8 | Main | Wood |
| Kitchen | 120 sq ft | 12 x 10 | Main | Tile |
| Living Room | 288 sq ft | 18 x 16 | Main | Wood |
Price & Listing History
-
Mar 2026 · Listed$549,900
-
Pending · 68 days since listedFinal price disclosed at closing
Prior price and listing information from sources believed to be reliable, but no guarantees of accuracy and data has not been confirmed. Please confirm with county official documents.
Flood Zone
Source: FEMA National Flood Hazard Layer. Flood maps are updated periodically (typically every 5–10 years per area) and may not reflect current ground conditions or recent improvements. For mortgage purposes, your lender may obtain an official Flood Determination from a licensed firm. Always verify before making decisions.
Location
- Parks
- Boat landings
- Bike trails
- Grocery
- Hospital
- Gas
- Schools
What's Near 10198 162nd St, Chippewa Falls, WI 54729
Nearby Parks
- 3.5 mi
- 3.5 mi
- 3.8 mi
Nearby Boat Landings
- 4.2 mi
Nearby Bike Trails
- 1 mi
- 4.7 mi
- 7.4 mi
Chippewa Falls Area Schools
Chippewa Falls Area Unified School District
Nearby colleges & universities
- CVTC – Chippewa Falls 4.5 mi · Chippewa Falls
School information is sourced from public NCES data (assigned public schools from attendance-boundary data; nearby private schools and colleges by distance) and may change. Confirm directly with the school or district before relying on it.
Chippewa Falls Property Taxes
- Annual tax
- $4,732.96 (2025)
- Parcel #
22908153466540010- County
- Chippewa
Legal: SEC 15, T 29 N, R 08 W GL10 EAGLE VIEW ESTATES LOT 10
Mortgage Calculator
More Homes in Chippewa Falls
