N6450 Ellsworth Lake Drive Spooner, WI 54801
3 beds · 2 baths (1 Full / 1 Half) · 1,536 sqft · $194/sqft · 3.5 acres · Built 1978
MLS# 1597982
About N6450 Ellsworth Lake Drive
Enjoy peaceful country living on 3.5 scenic acres with this charming 3-bedroom, 1.5-bath home.
The property features a detached garage with a convenient lean-to, along with a small shed perfect for additional storage or hobby use.
Nature lovers will appreciate the abundant wildlife year-round and the public access to Ellsworth Lake is just a short walk away-ideal for fishing, kayaking, or relaxing by the water.
A wonderful opportunity to own a private retreat with room to roam while still enjoying nearby recreational amenities.
Property Details
- Style
- Bi Level
- Levels
- Multi Split
- Above Grade Finished
- 768 sq ft
- Below Grade Finished
- 633 sq ft
- Possession
- Close Of Escrow
- Heating
- Forced Air
- Cooling
- Central Air
- Electric
- Circuit Breakers
- Water
- Drilled Well
- Sewer
- Septic Tank
- Foundation
- Poured
- Construction
- Vinyl Siding
- Appliances
- Dryer, Dishwasher, Electric Water Heater, Microwave, Oven, Range, Refrigerator, Washer
- Basement
- Daylight, Partially Finished
- Fireplace
- Gas Log
- Patio & Porch
- Deck
- Parking
- Driveway, Detached, Garage, Gravel
- Other Structures
- Outbuilding, Sheds
- HOA
- None
- School District
- Spooner Area
- County
- Washburn
- Township
- Town of Evergreen
- Directions
- Hwy 63 North of Spooner, west on Hwy A approximately 8 miles, left on Ellsworth Lake Drive to property
- Parcel Number
- 13507
- Legal Description
- PT GOV LOT 2 DOC#312647 QC
- Listing Brokerage
- Re/Max 4 Seasons, LLC
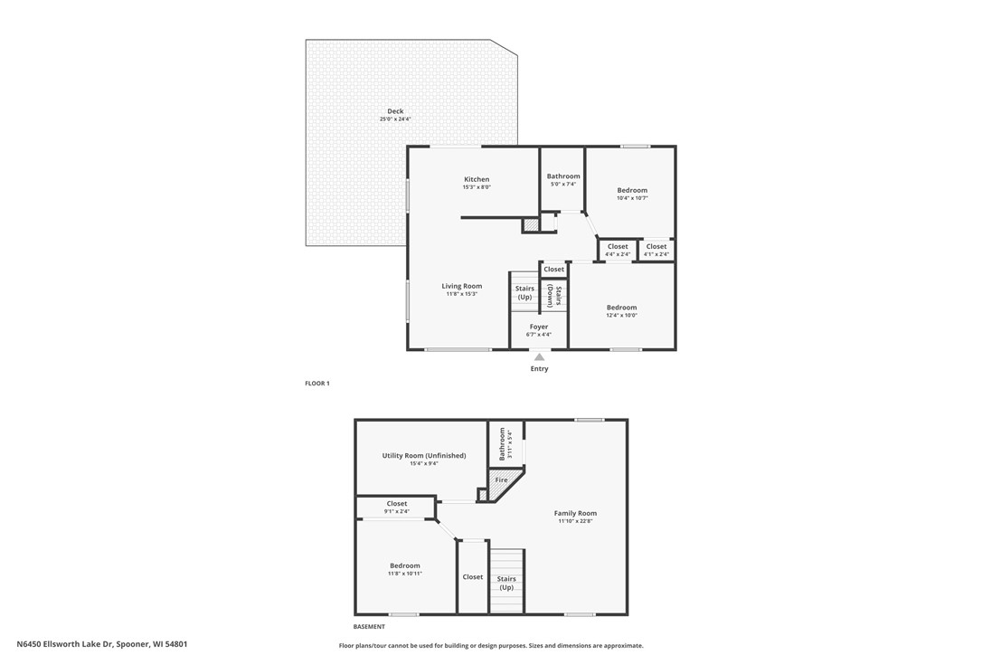
Room Details
| Room | Area | Dimensions | Level | Flooring |
|---|---|---|---|---|
| Laundry Room | 135 sq ft | 15 x 9 | Lower | Concrete |
| Bathroom | 20 sq ft | 5 x 4 | Lower | Tile |
| Bedroom | 120 sq ft | 12 x 10 | Main | Carpet |
| Bedroom | 121 sq ft | 11 x 11 | Lower | Tile |
| Family Room | 264 sq ft | 12 x 22 | Lower | Tile |
| Bathroom | 35 sq ft | 7 x 5 | Main | Vinyl |
| Bedroom | 110 sq ft | 10 x 11 | Main | Tile,Vinyl |
| Kitchen | 120 sq ft | 15 x 8 | Main | Laminate,Vinyl |
| Living Room | 180 sq ft | 15 x 12 | Main | Laminate |
Price & Listing History
-
Apr 2022 · Listed$229,900
-
Jun 2022 · Sold · 43 days on market$251,000
-
Jan 2026 · Listed$297,500+18.5% above last sale $251,000 in 2022 (+$46,500 over 3.6 years · +4.8% per year)
-
Under Contract · 111 days since listedFinal price disclosed at closing
Prior price and listing information from sources believed to be reliable, but no guarantees of accuracy and data has not been confirmed. Please confirm with county official documents.
Flood Zone
Source: FEMA National Flood Hazard Layer. Flood maps are updated periodically (typically every 5–10 years per area) and may not reflect current ground conditions or recent improvements. For mortgage purposes, your lender may obtain an official Flood Determination from a licensed firm. Always verify before making decisions.
Location
- Parks
- Bike trails
- Hospital
- Gas
What's Near N6450 Ellsworth Lake Dr , Spooner, WI 54801
Nearby Parks
- 5.8 mi
- 6 mi
- 6.2 mi
Nearby Boat Landings
- 11.8 mi
- 12.8 mi
Nearby Bike Trails
- 6.4 mi
- 7 mi
Spooner Area Schools
School assignments are sourced from public data and may change. Confirm directly with the district before relying on assignment.
Spooner Property Taxes
- Annual tax
- $1,933.67 (2026)
- Parcel #
13507- County
- Washburn
Legal: PT GOV LOT 2 DOC#312647 QC
Mortgage Calculator
More Homes in Spooner
