4758 N Ryan Road Couderay, WI 54828
3 beds · 1 bath · 3,309 sqft · $95/sqft · 20 acres · Built 1980
MLS# 1595799
About 4758 N Ryan Road
Charming property lovingly referred to as ‘the farm’ offers a beautiful landscape of the countryside including several large apple trees.
Conveniently located on a dead-end road, giving you privacy.
Options are endless with possibility; this could be a great place to raise your family, the perfect cabin for up north activities, or even a hobby farm.
The yard and garage offer plenty of space for ‘toys’ and it is close to ATV and snowmobile trails.
Home could use some updates but ultimately has ‘good bones’.
Motivated Seller!
Property Details
- Above Grade Finished
- 1,103 sq ft
- Below Grade Finished
- 1,103 sq ft
- Possession
- Close Of Escrow
- Heating
- Hot Water
- Electric
- Circuit Breakers
- Water
- Private, Well
- Sewer
- Septic Tank
- Foundation
- Poured
- Appliances
- Dryer, Oven, Range, Refrigerator, Washer
- Basement
- Full
- Patio & Porch
- Deck
- Parking
- Driveway, Detached, Garage, Gravel
- HOA
- None
- School District
- Winter
- County
- Sawyer
- Township
- Town of Couderay
- Directions
- Heading west in the town of Couderay, turn right on N Hoffer Rd. After a few blocks turn left onto Ryan Road and follow for a little over 1 mile to the property on the right.
- Parcel Number
- 4456
- Original List Price
- $325,000
- Previous Price
- $319,900
- Exclusions
- Freezer, Sellers Personal
- Legal Description
- Sec 01 Tn 38 Rg 08 PRT SWNW
- Listing Brokerage
- Northwest Wisconsin Realty Team
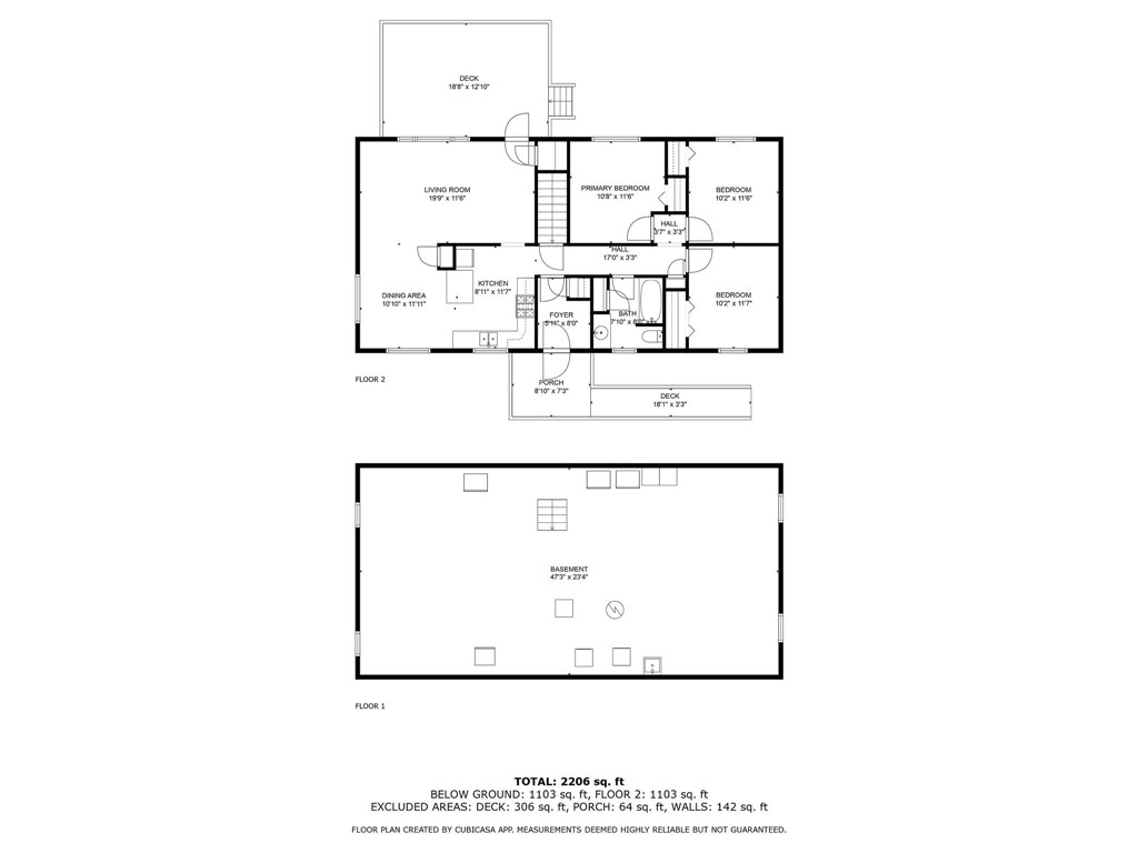
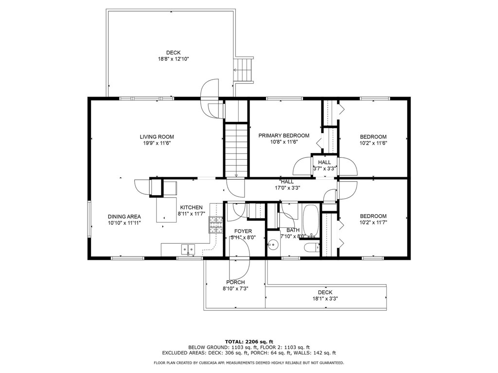
Room Details
| Room | Area | Dimensions | Level | Flooring |
|---|---|---|---|---|
| Entry/Foyer | 41 sq ft | 5.11 x 8 | Main | Linoleum |
| Dining Room | 112 sq ft | 10.1 x 11.11 | Main | |
| Kitchen | 95 sq ft | 8.11 x 11.7 | Main | Linoleum |
| Living Room | 220 sq ft | 20 x 11 | Main | Carpet |
| Bathroom | 57 sq ft | 7.1 x 8 | Main | Linoleum |
| Bedroom | 125 sq ft | 10.8 x 11.6 | Main | Linoleum |
| Bedroom | 118 sq ft | 10.2 x 11.6 | Main | Linoleum |
| Bedroom | 119 sq ft | 10.2 x 11.7 | Main | Linoleum |
Price & Listing History
-
Sep 2025 · Listed$325,000
-
Currently active · 244 days on marketNow $314,900
Prior price and listing information from sources believed to be reliable, but no guarantees of accuracy and data has not been confirmed. Please confirm with county official documents.
Flood Zone
Source: FEMA National Flood Hazard Layer. Flood maps are updated periodically (typically every 5–10 years per area) and may not reflect current ground conditions or recent improvements. For mortgage purposes, your lender may obtain an official Flood Determination from a licensed firm. Always verify before making decisions.
Location
- Parks
- Hospital
What's Near 4758 N Ryan Rd, Couderay, WI 54828
Nearby Parks
- 1 mi
- 1.2 mi
- 1.2 mi
Nearby Bike Trails
- 10.7 mi
Local Spotlight
- 17.9 mi
Couderay Area Schools
School assignments are sourced from public data and may change. Confirm directly with the district before relying on assignment.
Couderay Property Taxes
- Annual tax
- $900.13 (2024)
- Parcel #
4456- County
- Sawyer
Legal: Sec 01 Tn 38 Rg 08 PRT SWNW
Mortgage Calculator
More Homes in Couderay
