- 2
- Bedrooms
- 1
- Bathroom
- true
- Garages
- 1932
- Sq Ft
- 1953
- Year Built
- 1597872
- MLS#
Come check out this adorable doll house that has been pre-inspected for your peace of mind and also includes a 13 month Home Warranty ($825 value).
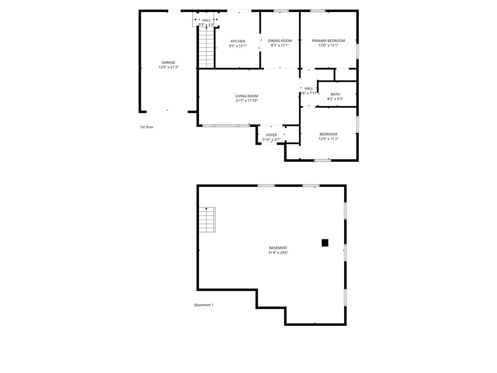
Large living room with brand new picture window, new carpet throughout, new furnace in last 2 years, fenced in backyard, large open basement for storage and workshop space.
Options to use laundry hookups in basement but main floor is also plumbed for laundry in main floor dining room for those seeking 1 level living! Kitchen has been updated with gorgeous oak cabintry.
Spacious 1 car atached garage and just blocks away from Memorial High School and close to shopping, restaurants, and medical facilities in a desirable south side neighborhood.
Please see attachments for copy of Inspection Report.
This very well maintained, super clean home is ready for some fresh paint to add your own personal touch of color and enjoy for years to come!
Schools
Utilities
Property Amenities and Appliances
- Arts & Entertainment
-
Church of Christ (0.08 mi)0 reviews
-
Sarah Larson at Donnellan Real Estate (0.16 mi)0 reviews
-
Gray Area Interiors (0.16 mi)0 reviews
-
Mattress Clearance Center (0.16 mi)Exceptional 2 reviews
- Automotive
-
Holiday Station Store 357 (0.13 mi)Average 2 reviews
-
Advance Auto Parts (0.15 mi)0 reviews
-
Mega Holiday (0.15 mi)0 reviews
-
AJM Automotive Services (0.2 mi)0 reviews
- Education
-
Ordinary Magic (0.2 mi)0 reviews
-
Accountable Driver Education (0.22 mi)0 reviews
-
Yellow Brick Academy (0.21 mi)0 reviews
-
Memorial High School (0.27 mi)0 reviews
- Food
-
Mega Holiday (0.15 mi)0 reviews
-
Dhimiters Food Trailer (0.17 mi)0 reviews
-
Our Daily Bread Bakery (0.2 mi)0 reviews
-
Jay Ray’s Deli (0.19 mi)Exceptional 21 reviews
Mortgage Calculator
-
Down Payment
-
Loan Amount
-
Monthly Mortgage Payment






