129 Grey Friar Lane Eau Claire, WI 54701
5 beds · 3 baths · 3,640 sqft · $161/sqft · 1.68 acres · Built 2014 · 3-car garage
MLS# 1598811
About 129 Grey Friar Lane
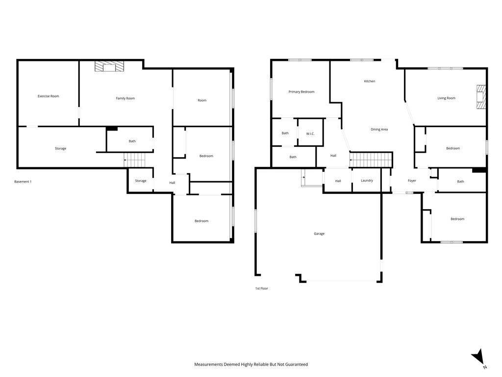
Beautiful ranch home on a quiet cul du sac located in a desirable southside neighborhood, just minutes from town! This well-maintained property features a stunning owner’s suite and a spacious, fully finished basement complete with a large family room, playroom, exercise room, two additional bedrooms, and a full bathroom — offering plenty of space for everyone.
The oversized 3-car garage provides ample storage and convenience.
Recent updates include a new roof, custom closet built-ins, and new dishwasher.
The home is serviced by a septic system rated for a 3-bedroom home (up to 6 people) and sits on a beautiful 1.62-acre lot in the Town of Washington — offering lower taxes, space, privacy, and room to enjoy the outdoors.
Property Details
- Style
- One Story
- Stories
- 1
- Levels
- One
- Above Grade Finished
- 1,820 sq ft
- Below Grade Finished
- 1,510 sq ft
- Heating
- Forced Air
- Cooling
- Central Air
- Electric
- Circuit Breakers
- Water
- Well
- Sewer
- Septic Tank
- Foundation
- Poured
- Construction
- Aluminum Siding, Stone
- Appliances
- Dishwasher, Electric Water Heater, Microwave, Oven, Range, Refrigerator
- Windows
- Window Coverings
- Basement
- Full, Partially Finished
- Fireplace
- Electric, Two, Gas Log
- Patio & Porch
- Concrete, Patio
- Parking
- Asphalt, Attached, Driveway, Garage, Garage Door Opener
- HOA
- None
- County
- Eau Claire
- Township
- Town of Washington
- Directions
- South on State Street to right on F. Left on Grey Friar Lane.
- Parcel Number
- 1802422609051202006
- Original List Price
- $589,900
- Exclusions
- Dryer, Washer
- Legal Description
- LOT 10 BLK 2 CANTERBURY COURT SUB T OF WASHINGTON SEE TOD DESIGNATION DOC 1195811
- Listing Brokerage
- Hometown Realty Group
Room Details
| Room | Area | Dimensions | Level | Flooring |
|---|---|---|---|---|
| Bathroom | 72 sq ft | 6 x 12 | Lower | Laminate |
| Bathroom | 108 sq ft | 9 x 12 | Main | Laminate |
| Bathroom | 108 sq ft | 9 x 12 | Main | Ceramic Tile |
| Bedroom | 120 sq ft | 12 x 10 | Lower | Carpet |
| Bedroom | 156 sq ft | 13 x 12 | Lower | Carpet |
| Bedroom | 156 sq ft | 12 x 13 | Main | Carpet |
| Bedroom | 154 sq ft | 11 x 14 | Main | Carpet |
| Bedroom | 224 sq ft | 14 x 16 | Main | Carpet |
| Office | 169 sq ft | 13 x 13 | Lower | Carpet |
| Bonus Room | 195 sq ft | 15 x 13 | Lower | Laminate |
| Laundry Room | 72 sq ft | 6 x 12 | Main | Wood |
| Family Room | 308 sq ft | 22 x 14 | Lower | Carpet |
| Dining Area | 180 sq ft | 18 x 10 | Main | Wood |
| Kitchen | 216 sq ft | 12 x 18 | Main | Wood |
| Living Room | 266 sq ft | 14 x 19 | Main | Carpet |
Price & Listing History
-
Sep 2014 · Listed$276,800
-
Jul 2015 · Sold · 295 days on market$251,000Price reduced $276,800 → $269,900 before sale
-
Mar 2026 · Listed$589,900+135.0% above last sale $251,000 in 2015 (+$338,900 over 10.6 years · +8.4% per year)
-
Currently active · 70 days on marketNow $584,900
Prior price and listing information from sources believed to be reliable, but no guarantees of accuracy and data has not been confirmed. Please confirm with county official documents.
Flood Zone
Source: FEMA National Flood Hazard Layer. Flood maps are updated periodically (typically every 5–10 years per area) and may not reflect current ground conditions or recent improvements. For mortgage purposes, your lender may obtain an official Flood Determination from a licensed firm. Always verify before making decisions.
Location
- Parks
- Boat landings
- Bike trails
- Grocery
- Gas
What's Near 129 Grey Friar Ln, Eau Claire, WI 54701
Nearby Parks
- 0.7 mi
- 1.1 mi
- 1.4 mi
Nearby Boat Landings
- 2.5 mi
Nearby Bike Trails
- 2 mi
- 2.1 mi
- 2.3 mi
Eau Claire Area Schools
Eau Claire Area School District
- Elementary
- Putnam Heights Elementary School official site →
School assignments are sourced from public data and may change. Confirm directly with the district before relying on assignment.
Eau Claire Property Taxes
- Annual tax
- $4,909.00 (2025)
- Parcel #
1802422609051202006- County
- Eau Claire
Tax history or assessment detail: Search Eau Claire County property records ↗ — paste the parcel number above when prompted.
Mortgage Calculator
More Homes in Eau Claire
