1206 Willow Street Chippewa Falls, WI 54729
5 beds · 3 baths · 3,396 sqft · 0.3 acres · Built 1971 · 2-car garage
Listed 4 days ago
About 1206 Willow Street
Well-maintained home in a convenient West Hill location just blocks from the high school.
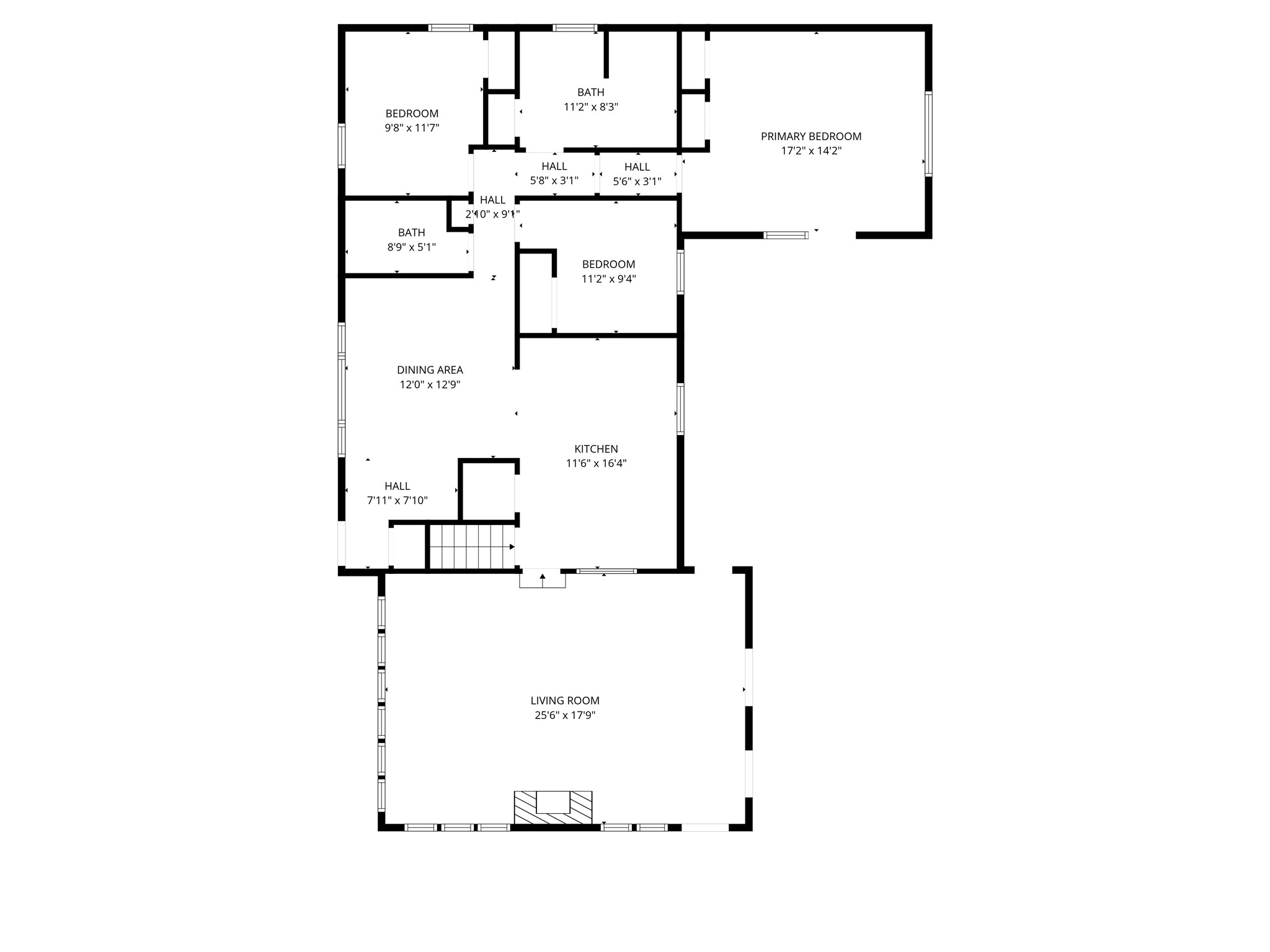
Offers 5 bedrooms and a bright living room with a gas fireplace insert.
Updated kitchen remodeled in 2020 with new flooring, plus a dedicated dining area and pantry added in 2018.(per prior seller)
Owner’s bedroom features sliding glass doors leading to a private patio area.
Main level bath includes a dual-head shower and in-bath laundry, with potential to create a more defined primary suite.
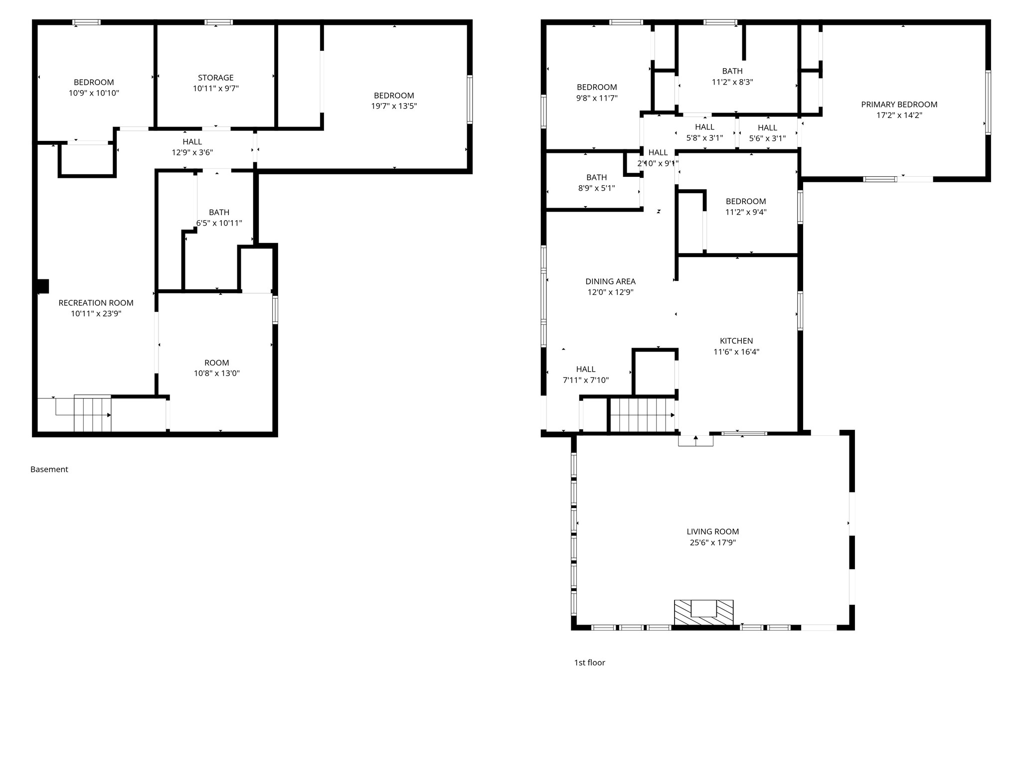
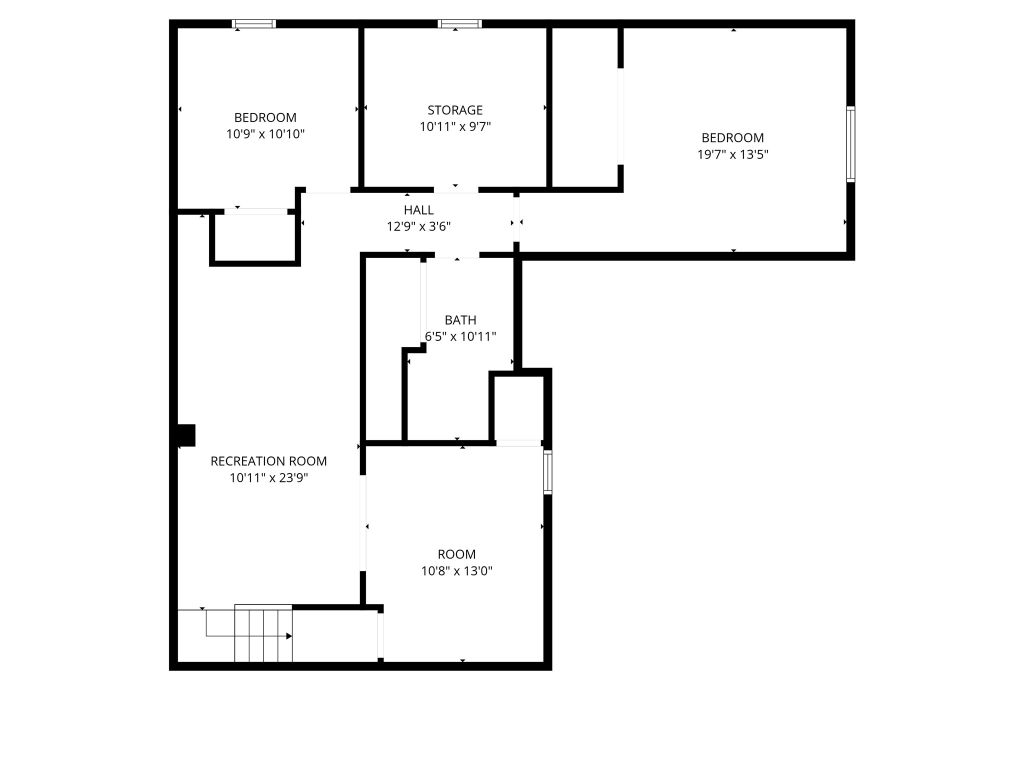
Lower level finished in 2017–2018 with a family room, bonus space, additional bedrooms, bathroom, and storage.
Major updates include furnace and water heater (2018), roof (2011), and new siding (2026).
Attached two-car garage.
Backyard includes a putting green and in-ground trampoline.
Property Details
- Style
- One Story
- Stories
- 1
- Levels
- One
- Above Grade Finished
- 1,698 sq ft
- Below Grade Finished
- 1,572 sq ft
- Possession
- Close Of Escrow
- Heating
- Forced Air
- Cooling
- Central Air
- Electric
- Circuit Breakers
- Water
- Public
- Sewer
- Public Sewer
- Foundation
- Poured
- Construction
- Vinyl Siding
- Basement
- Full, Finished
- Patio & Porch
- Concrete, Patio
- Parking
- Attached, Garage
- HOA
- None
- School District
- Chippewa Falls Area Unified
- County
- Chippewa
- Township
- City of Chippewa Falls
- Directions
- North on Bridge St. , West on Willow, to Coleman, South on Wheaton, West on Dover, South on St. Augustine to<br>W. Willow ( Home located on Corner)
- Parcel Number
- 22809014461920215
- Exclusions
- Dryer, Washer
Location
- Parks
- Boat landings
- Bike trails
- Gas
What's Near 1206 Willow St, Chippewa Falls
Nearby Parks
- 0.8 mi
- 0.9 mi
- 1 mi
Nearby Boat Landings
- 6.6 mi
- 10.5 mi
Nearby Bike Trails
- 1.1 mi
- 3.3 mi
- 4.6 mi
Chippewa Falls Area Schools
Chippewa Falls Area Unified School District
School assignments are sourced from public data and may change. Confirm directly with the district before relying on assignment.
Chippewa Falls Property Taxes
- Annual tax
- $4,641.18 (2025)
- Parcel #
22809014461920215- County
- Chippewa
Mortgage Calculator
More Listings in Chippewa Falls