Residential in Menomonie Menomonie, WI 54751
2 beds · 1 bath · 1,200 sqft · $188/sqft · 0.19 acres · Built 1900
MLS# 1599781
About Residential in Menomonie
Welcome to a home that truly offers more than you’d expect for the price! Ideally situated in central Menomonie, you’ll love being just moments from scenic walking trails and the natural beauty of Wakanda Park.
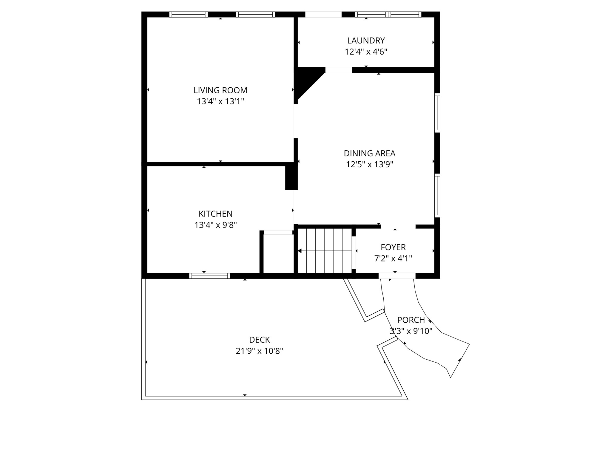
Inside, you’ll find thoughtful updates throughout, including stylish LVP flooring across the main level a furnace and central air system updated in 2019, and a brand-new water heater in 2025.
The spacious dining area is perfect for gathering with family and friends, offering plenty of room to host and connect.
Step outside to your private retreat, featuring a large deck that overlooks a generous sized, fenced in backyard designed for relaxation, privacy, and enjoying the peaceful sounds of nature.
Car enthusiasts, hobbyists, or anyone needing extra space will appreciate the oversized two-car garage, complete with in-floor heat, air-conditioning, and heating–making it a comfortable, year-round workspace.
This is a home that blends comfort, updates, and location–don’t miss your opportunity to make it yours!
Property Details
- Style
- One And One Half Story
- Levels
- One And One Half
- Above Grade Finished
- 1,200 sq ft
- Possession
- Close Of Escrow
- Heating
- Forced Air
- Cooling
- Central Air
- Electric
- Circuit Breakers
- Water
- Public
- Sewer
- Public Sewer
- Foundation
- Stone
- Construction
- Vinyl Siding
- Appliances
- Dryer, Dishwasher, Gas Water Heater, Microwave, Oven, Range, Refrigerator, Range Hood, Washer
- Interior Features
- Ceiling Fans
- Windows
- Window Coverings
- Basement
- Partial
- Exterior Features
- Fence
- Fencing
- Wood, Yard Fenced
- Patio & Porch
- Deck
- Parking
- Concrete, Driveway, Detached, Garage, Garage Door Opener
- HOA
- None
- School District
- Menomonie Area
- County
- Dunn
- Directions
- North Broadway to east on Maple, down two blocks to Tainter Street, head north on Tainter St. It will be the second home on left side of the street.
- Parcel Number
- 1725122813232100088
- Exclusions
- Sellers Personal
- Legal Description
- NORTH MENOMONIE L 8 BL 8
- Listing Brokerage
- Keller Williams Realty Diversified
Room Details
| Room | Area | Dimensions | Level | Flooring |
|---|---|---|---|---|
| Bedroom | 132 sq ft | 12 x 11 | Upper | Laminate |
| Bedroom | 110 sq ft | 11 x 10 | Upper | Laminate |
| Bathroom | 54 sq ft | 9 x 6 | Upper | Linoleum |
| Entry/Foyer | 32 sq ft | 8 x 4 | Main | Simulated Wood,Plank |
| Laundry Room | 54 sq ft | 6 x 9 | Main | Simulated Wood,Plank |
| Kitchen | 140 sq ft | 14 x 10 | Main | Simulated Wood,Plank |
| Dining Room | 156 sq ft | 13 x 12 | Main | Simulated Wood,Plank |
| Living Room | 182 sq ft | 14 x 13 | Main | Carpet |
Price & Listing History
-
Jul 2022 · Listed$160,0001408 Tainter Street
-
Aug 2022 · Sold · 49 days on market$175,000
-
Apr 2026 · Listed$225,0001408 Tainter Street+28.6% above last sale $175,000 in 2022 (+$50,000 over 3.6 years · +7.2% per year)
-
Currently active · 34 days on market
Prior price and listing information from sources believed to be reliable, but no guarantees of accuracy and data has not been confirmed. Please confirm with county official documents.
Flood Zone
Source: FEMA National Flood Hazard Layer. Flood maps are updated periodically (typically every 5–10 years per area) and may not reflect current ground conditions or recent improvements. For mortgage purposes, your lender may obtain an official Flood Determination from a licensed firm. Always verify before making decisions.
Location
- Parks
- Boat landings
- Bike trails
- Hospital
- Gas
What's Near Residential in Menomonie, Menomonie, WI 54751
Nearby Parks
- 0.5 mi
- 0.7 mi
- 1.1 mi
Nearby Boat Landings
- 0.8 mi
- 8.6 mi
- 11.2 mi
Nearby Bike Trails
- 1 mi
- 1.3 mi
- 1.3 mi
Menomonie Area Schools
Menomonie Area School District
School assignments are sourced from public data and may change. Confirm directly with the district before relying on assignment.
Menomonie Property Taxes
- Annual tax
- $1,860.70 (2025)
- Parcel #
1725122813232100088- County
- Dunn
Legal: NORTH MENOMONIE L 8 BL 8
Mortgage Calculator
More Homes in Menomonie
