- 3
- Bedrooms
- 3
- Bathrooms
- true
- Garages
- 3775
- Sq Ft
- 2002
- Year Built
- 1596306
- MLS#
Welcome to golf course living at its finest.
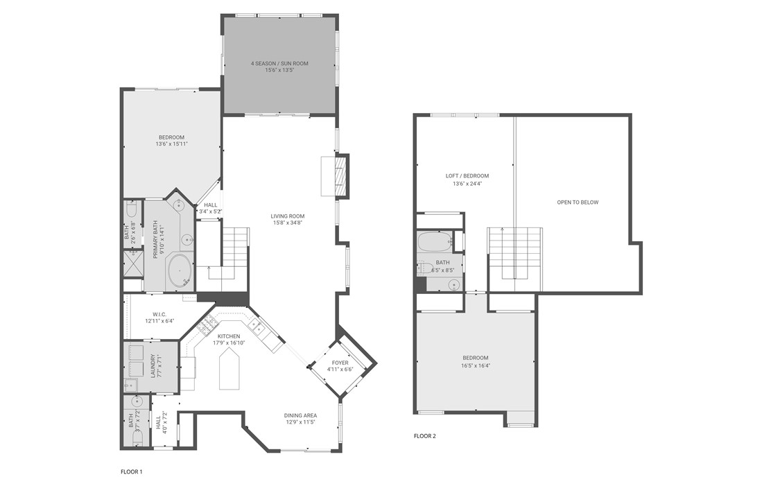
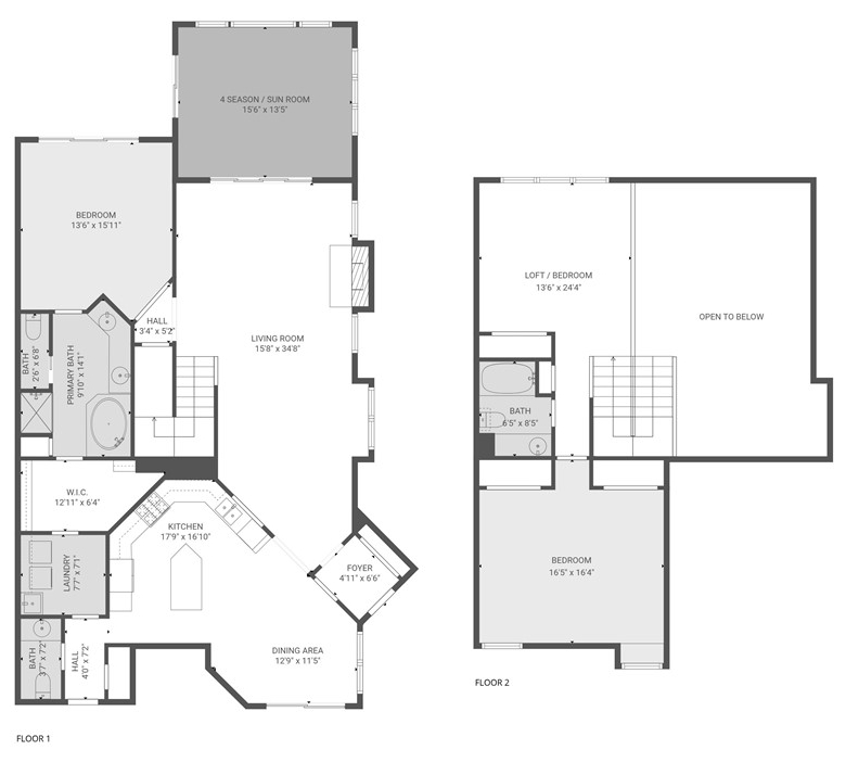
This beautifully maintained 3-bedroom, 2½-bath home is perfectly situated along the fairways of Big Fish Golf Course, offering peaceful views and a setting that feels private yet connected to one of Hayward’s most scenic neighborhoods.
Inside, you’ll find a spacious and comfortable floor plan designed for everyday living and entertaining alike.
The main living area features a large, light-filled living room anchored by a beautiful fireplace, while the gorgeous sunroom provides a front-row seat to the course, perfect for morning coffee, afternoon reading, or watching golfers pass by.
The open layout flows easily between rooms, with the option for convenient one-level living.
The expansive primary suite feels like a retreat, complete with a spa-like bath featuring dual vanities, a soaking tub, and a separate shower, plus a generous walk-in closet.
Two additional bedrooms and a second full bath offer space for family or guests, and a half bath near the entry adds convenience.
A highlight for hobbyists or those seeking comfort year-round is the attached, heated and insulated two-car garage, ideal for vehicles, projects, or golf cart storage.
Downstairs, a full unfinished basement with stud walls in place and an egress window provides the opportunity to expand your living space easily and affordably.
Whether you envision a family room, guest suite, or home gym, the hard work is already started.
The twinhome is incredibly well insulated, providing quiet indoor ambiance and also minimizing heating costs.
Step outside to the private back patio and enjoy the peaceful setting surrounded by mature landscaping and long golf course views.
Additional upgrades include a new roof installed in 2022, providing peace of mind for years to come.
There are no monthly or annual condo fees for this home!
Schools
Utilities
Property Amenities and Appliances
- Arts & Entertainment
-
Rosalie's Crafts & Gift Shop (0.54 mi)0 reviews
-
Majik Unlimited (1.7 mi)0 reviews
-
AutomotiveFineArt (1.96 mi)0 reviews
-
Sawyer County Agricultural Fair Association (1.81 mi)0 reviews
- Automotive
-
Ultimate Auto Body/Auto Enhancers (0.53 mi)Exceptional 2 reviews
-
Lake Country Sales and Rentals (0.6 mi)0 reviews
-
North Shore Auto Repair (0.76 mi)Exceptional 1 reviews
-
Hayward Glass & Door (2.21 mi)Exceptional 1 reviews
- Education
-
Great Lakes Higher Education (2.6 mi)0 reviews
-
Lco Head Start (2.77 mi)0 reviews
-
Lac Courte Oreilles College (3.39 mi)0 reviews
-
Lac Courte Oreilles Ojibwe School (3.43 mi)0 reviews
- Food
-
Kinnikkinnik Basket (0.38 mi)0 reviews
-
Lco Casino Lodge & Convention Center (0.38 mi)Fair 29 reviews
-
Koobies Coffee Shop (0.41 mi)0 reviews
-
Mobil Outpost (0.42 mi)0 reviews
Mortgage Calculator
-
Down Payment
-
Loan Amount
-
Monthly Mortgage Payment






