726 Herbert Street Chippewa Falls WI 54729

  • $230,000

726 Herbert Street Chippewa Falls WI 54729

  • $230,000
  • 2
  • Bedrooms
  • 2
  • Bathrooms
  • false
  • Garages
  • 1593
  • Sq Ft
  • 1952
  • Year Built
  • 1599412
  • MLS#

Welcome home to this charming and thoughtfully updated 1.5-story property offering comfort, efficiency, and great value.

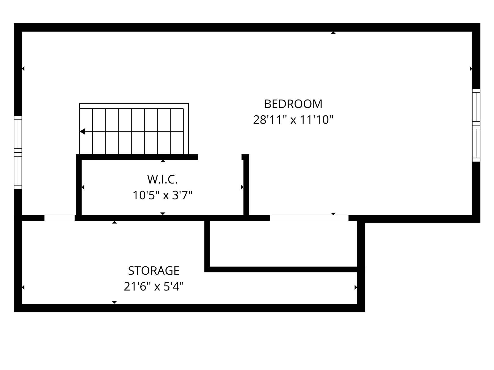
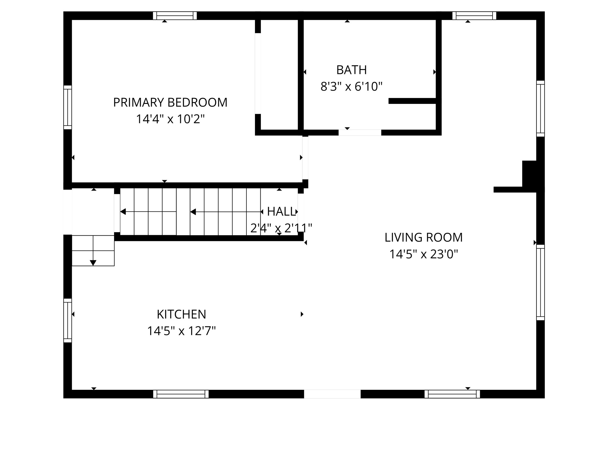
Featuring 2 bedrooms and 2 full bathrooms across 1,080 square feet.

The interior walls have been reinsulated (with only a small portion remaining), and the upper level features spray insulation for added energy efficiency.

Major mechanical updates include a new HVAC system installed in January 2025 and central A/C added in May 2025.

The electrical system has been upgraded to 220 service per seller, and new plumbing has been installed in the basement.
The updated kitchen showcases granite countertops and modern finishes, while the main level full bath has also been tastefully renovated.

Additional improvements include a new front door and side door, enhancing both curb appeal and functionality.
All appliances are included, along with a chest freezer in the basement—making this home truly move-in ready.
Outside, you'll find a spacious 24x32 detached 2-car garage and a large backyard, perfect for entertaining, hobbies, or simply enjoying the outdoors.
Don’t miss the opportunity to own this well-maintained and efficiently updated home!

Schools

High School: Chippewa Falls Area Unified
Elementary School: Chippewa Falls Area Unified

Utilities

Sewer: PublicSewer
Water: Public
Directions: 94 North to “OO” exit. Take a left to follow Business 53 W Park Ave Stop Light. Take left onto W park Ave and follow til you get to W Garden St, take a left onto W Garden St. Turn right onto Herbert to home on left.
Estimated Taxes: $2631
Heating: ForcedAir
Cooling: CentralAir
Garage Spaces: 2
Arts & Entertainment
Chippewa, Valley Financial Services (0.12 mi)
0 reviews
Indianhead Manor (0.19 mi)
0 reviews
Avalon Hotel & Conference Center (0.32 mi)
Average 20 reviews
CBS Squared (0.45 mi)
0 reviews
Automotive
Uncle Benny's Garage (0.17 mi)
0 reviews
A to B Mobile Repair (0.3 mi)
Exceptional 1 reviews
B&A Automotive (0.29 mi)
0 reviews
Mower Sperry Insurance Agency (0.44 mi)
Exceptional 1 reviews
Education
Cooperative Educational Service Agcy No 10 (0.1 mi)
0 reviews
Chippewa Area Catholic Schools Central Office (0.54 mi)
0 reviews
Schools (0.54 mi)
0 reviews
Faith Christian Pre-School (0.59 mi)
0 reviews
Food
Anderson's Chic-n-Fish (0.13 mi)
Good 13 reviews
New Maharaja (0.32 mi)
Exceptional 13 reviews
Arizonas Restaurant & Lounge (0.32 mi)
0 reviews
Dj's Mart (1.38 mi)
0 reviews

Mortgage Calculator

Compare listings

Compare