703 Hamilton Avenue Eau Claire, WI 54701
7,275 sqft · 0.69 acres · Built 1987
Listed 5 days ago
About 703 Hamilton Avenue
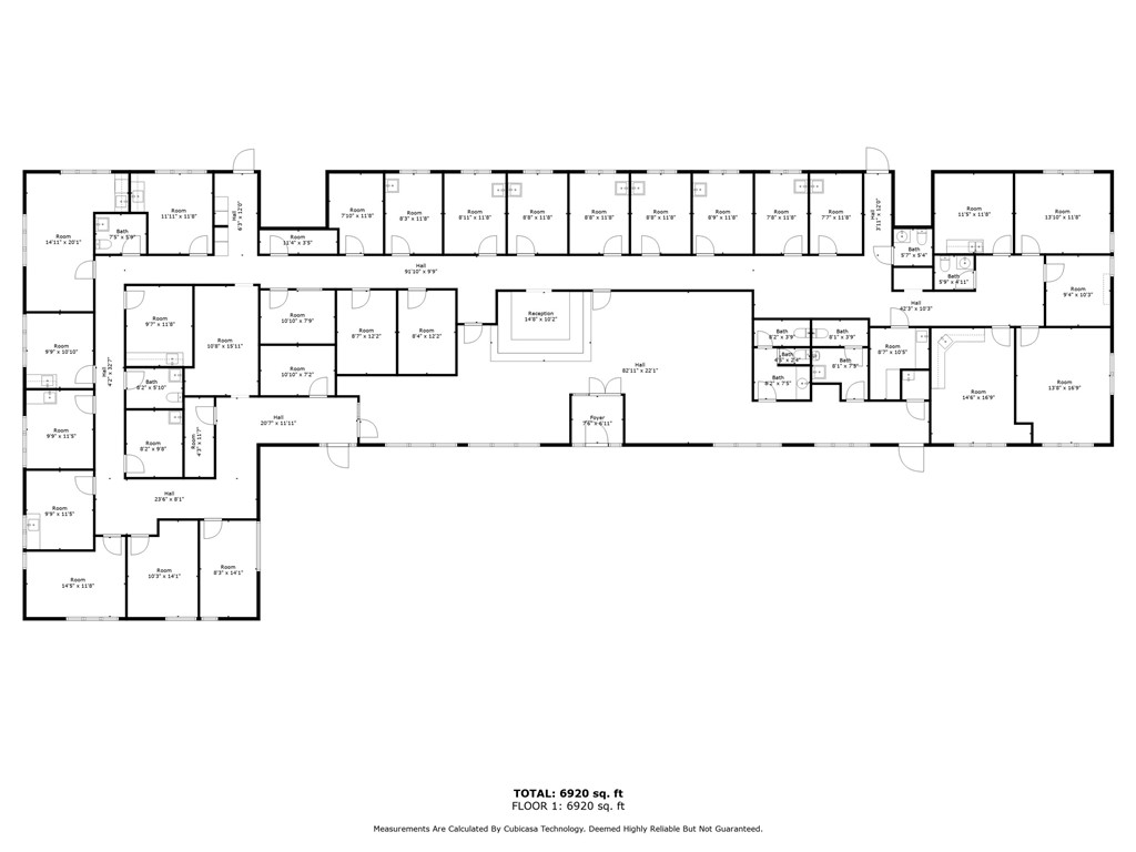
Discover this exceptional 7,275 sq ft medical office building ideally located in the heart of Eau Claire.
Perfect for healthcare groups, specialty clinics, or multi-provider practices, this turn-key facility offers modern functionality and thoughtful design to support high-volume patient care.
Key features include 16 exam rooms with sinks, 13 offices, 8 bathrooms for staff and patient convenience, expansive dual waiting room and reception area designed to streamline patient flow, large break room with small kitchen area, and new HVAC installed summer 2023.
This prime location ensures high visibility and accessibility with ample parking and easy access to major roads, hospitals, and supporting health services.
Ready for immediate occupancy- contact today to schedule a private tour or request leasing details.
$15/sq ft/year ($9,093K/month NNN lease)
Property Details
- Possession
- Close Of Escrow
- Heating
- Forced Air
- Cooling
- Central Air
- Electric
- Circuit Breakers
- Water
- Public
- Sewer
- Public Sewer
- Foundation
- Poured
- Construction
- Brick
- Interior Features
- Handicap Access, Storage
- Flooring
- Carpet
- Accessibility
- Other, Accessible Doors, Accessible Entrance, Accessible Hallways, Accessibility Features
- Exterior Features
- Lighting
- County
- Eau Claire
- Township
- City of Eau Claire
- Directions
- South on Stein Blvd to left on W Hamilton or from south on State Street to R on W Hamilton
Location
- Parks
- Boat landings
- Bike trails
- Grocery
What's Near 703 Hamilton Ave, Eau Claire
Nearby Parks
- 0.3 mi
- 0.5 mi
- 0.6 mi
Nearby Boat Landings
- 1.2 mi
Nearby Bike Trails
- 0.8 mi
- 1.1 mi
- 1.4 mi
Eau Claire Area Schools
Eau Claire Area School District
- Elementary
- Putnam Heights Elementary School official site →
School assignments are sourced from public data and may change. Confirm directly with the district before relying on assignment.
Mortgage Calculator
More Listings in Eau Claire