232 Springer Avenue Elmwood, WI 54740
28,549 sqft · 2.36 acres · Built 1973
Listed 4 days ago
About 232 Springer Avenue
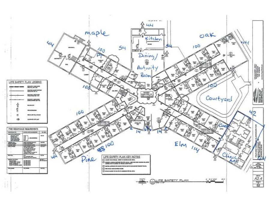
Spacious commercial investment opportunity awaits! Formerly used as a nursing home and medical clinic facility, this brick building boasts over 28,000 sqft and would make a fantastic assisted living or other care facility.
The space could also be reworked to a new use, such as renovating into housing.
The current layout has a front vestibule entry, reception area, private office, common area living room and 5 wings set up as 33 resident rooms, plus several common spaces, a back area that was once a commercial kitchen, and a prior medical clinic.
The clinic space is set up with a waiting room, reception area, two public restrooms, lab, staff restroom, X-Ray room, five exam rooms, one procedure room, and two offices.
There is an additional building with an unfinished basement, previously used as additional storage.
New furnace system installed within the past couple years.
Ample paved parking (aprox 37 spaces).
Come explore the possibilities!
Property Details
- Lot Dimensions
- 376 x 269 x
- Possession
- Close Of Escrow, Negotiable
- Heating
- Forced Air, Hot Water
- Cooling
- Central Air, Ductless
- Water
- Public
- Sewer
- Public Sewer
- Construction
- Brick
- Accessibility
- Accessibility Features, Low Threshold Shower, Other, Wheelchair Access, Accessible Doors, Accessible Entrance, Accessible Hallways
- School District
- Elmwood
- County
- Pierce
- Township
- Village of Elmwood
- Directions
- Coming from Menomonie I94, travel south on County Hwy 25 to Downsville then head west on County Hwy 72 to Elmwood, Hwy 72 turns into Race Avenue to North on Public/County P turn East on Springer Avenue. Rock on site says Heritage.
- Parcel Number
- 122010390500
- Original List Price
- $995,000
Location
- Parks
- Boat landings
- Bike trails
- Hospital
- Gas
What's Near 232 Springer Ave, Elmwood
Nearby Parks
- 0.6 mi
- 5.5 mi
- 5.6 mi
Nearby Boat Landings
- 10.3 mi
- 14 mi
Nearby Bike Trails
- 10.1 mi
- 11.7 mi
- 12.3 mi
Elmwood Area Schools
School assignments are sourced from public data and may change. Confirm directly with the district before relying on assignment.
Elmwood Property Taxes
- Parcel #
122010390500- County
- Pierce
Mortgage Calculator
More Listings in Elmwood