211 MAIN Street Greenwood, WI 54437
7,224 sqft · 0.18 acres · Built 1950
Listed 4 days ago
About 211 MAIN Street
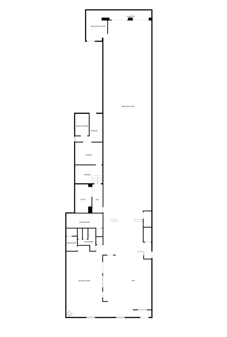
Here is your chance to own the historic Blue Mirror Bar and Bowl! This is a turn-key, well-established business in the heart of Greenwood waiting for a new owner to continue the legacy of the business.
Men’s and women’s leagues, 9 pin tap tournament, birthday parties, class reunions, the poker tournament during the Super Bowl Party and the End of Summer Fest are great revenue streams.
Famous for the Blue Mirror Burger and Blue Mirror Fries, as well as other food options.
Plenty of improvements in the kitchen equipment and coolers since 2021.
Enjoy not commuting to work with the spacious 3 bedroom, 2 bathroom apartment upstairs that features a large primary bedroom with en suite, or rent it out for additional income.
Property Details
- Possession
- Close Of Escrow
- Heating
- Baseboard, Hot Water, Radiant
- Cooling
- Central Air
- Water
- Public
- Sewer
- Public Sewer
- Foundation
- Block, Stone
- Construction
- Cedar, Cement Siding, Stone, Vinyl Siding
- Interior Features
- Furnished
- Flooring
- Carpet
- School District
- Greenwood
- County
- Clark
- Township
- City of Greenwood
- Directions
- Hwy 73/Main St across from Kwik Trip.
- Parcel Number
- 231.0332.000
Location
- Parks
What's Near 211 MAIN St, Greenwood
Nearby Parks
- 1.2 mi
- 12.5 mi
- 13.5 mi
Greenwood Area Schools
School assignments are sourced from public data and may change. Confirm directly with the district before relying on assignment.
Greenwood Property Taxes
- Annual tax
- $2,824.00 (2024)
- Parcel #
231.0332.000- County
- Clark
Mortgage Calculator
More Listings in Greenwood