- 4
- Bedrooms
- 3
- Bathrooms
- true
- Garages
- 2864
- Sq Ft
- 2018
- Year Built
- 1597935
- MLS#
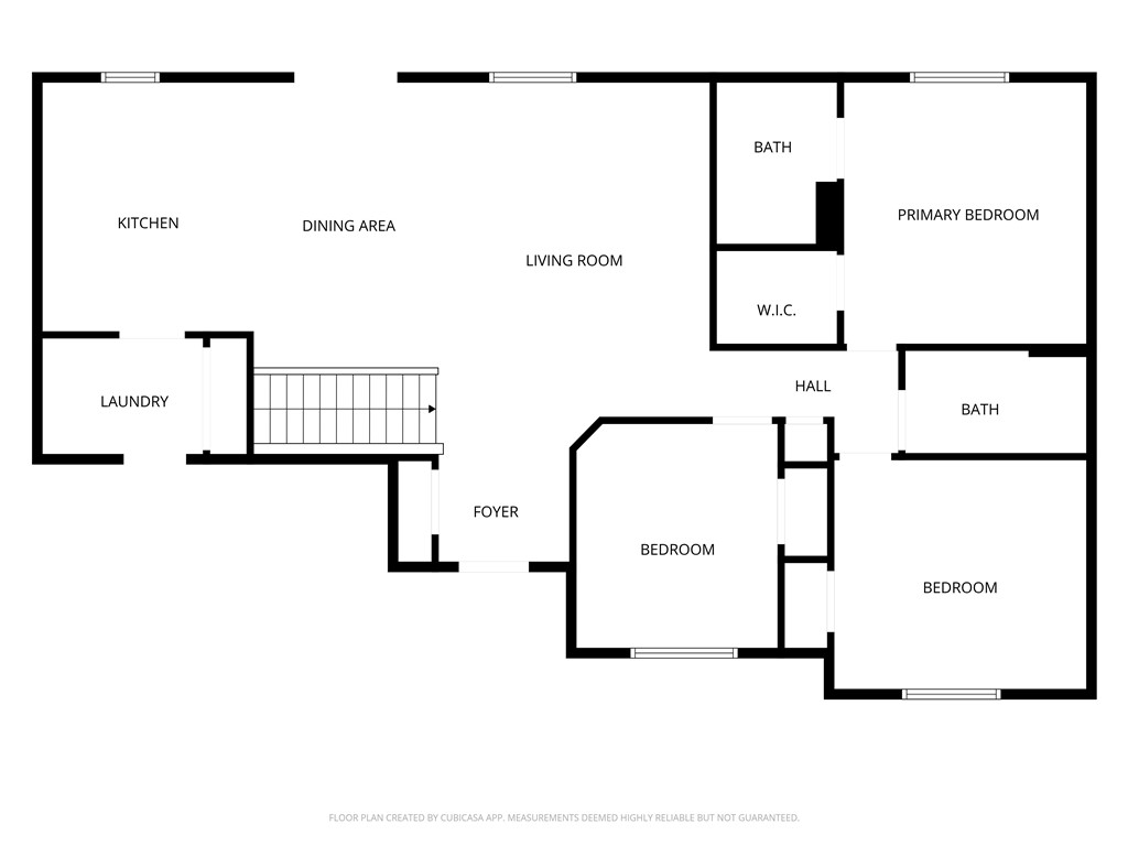
Move-in ready 4 bedroom, 3 bathroom home with open, light-filled layout and vaulted ceiling.
Features include low-maintenance tile flooring with wood-look finish, three-panel doors, main-floor laundry, and a spacious primary suite with private bath and walk-in closet.
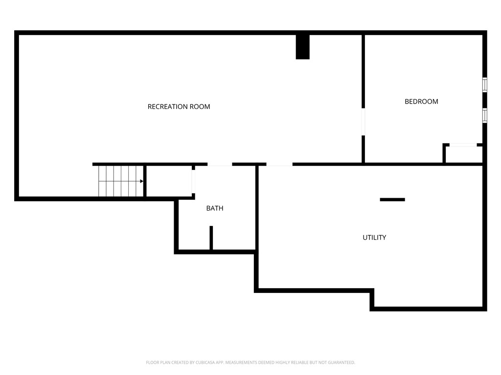
The fully finished basement (April 2023) adds valuable living space with an additional bedroom and bathroom, perfect for guests, office, or family room.
Patio door leads to a large, 38 feet by 25 feet L-shaped concrete patio extending to the back of garage and a fully fenced backyard on a .5 acre lot, ideal for entertaining and everyday outdoor living.
Additional highlights include all new appliances within the last two years, including washer and dryer, an in-ground sprinkler system, vinyl siding, new carpet (main floor in June 2021, lower level in 2023), fully insulated garage and garage doors, and quality construction by Freeman Homes, making this a truly move-in ready property.
Schools
Utilities
Property Amenities and Appliances
- Arts & Entertainment
-
Jacobs Photography (0.36 mi)Poor 1 reviews
-
Cavalcade of Cars Museum (1.52 mi)0 reviews
-
Buesser's Concrete (0.82 mi)Fair 3 reviews
-
Ultimate Performance Gymnastics & Cheer (1.07 mi)0 reviews
- Automotive
-
Craigs Auto Body (1.03 mi)Exceptional 1 reviews
-
Westside Auto Sales (1.14 mi)0 reviews
-
bp (1.25 mi)0 reviews
-
Auto Value - Lake Hallie (1.25 mi)0 reviews
- Education
-
Custom Industrial Services (0.25 mi)0 reviews
-
Ultimate Performance Gymnastics & Cheer (1.07 mi)0 reviews
-
Liberty Christian School (1.34 mi)0 reviews
-
Circle of Friends Early Learning Center (2.1 mi)Poor 1 reviews
- Food
-
River Jams (1.09 mi)Exceptional 60 reviews
-
River Bend Winery & Distillery (1.26 mi)Good 19 reviews
-
Burger King (1.25 mi)Poor 1 reviews
-
Holiday Station Store (1.27 mi)0 reviews
Mortgage Calculator
-
Down Payment
-
Loan Amount
-
Monthly Mortgage Payment





