- Home
- Residential
- 10471 Scarlet Tanager Lane Hayward WI 54843
10471 Scarlet Tanager Lane Hayward WI 54843
- $475,000
- 3
- Bedrooms
- 2
- Bathrooms
- false
- Garages
- 2200
- Sq Ft
- 2004
- Year Built
- 1598164
- MLS#
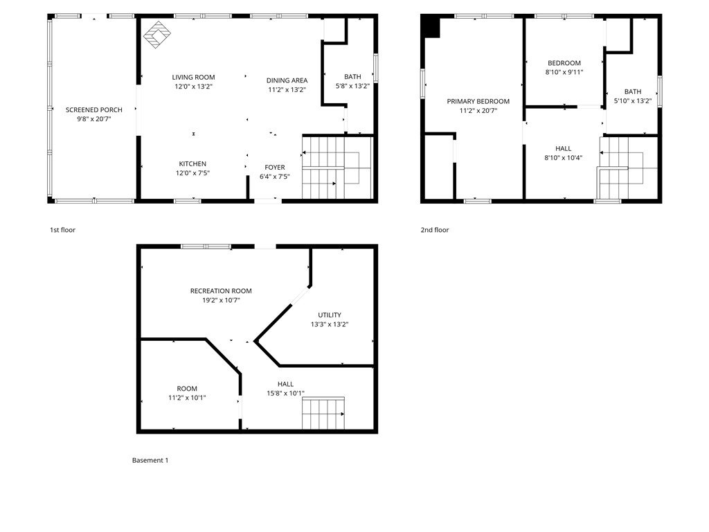
Beautiful timber-framed Adirondack-style home with creek frontage located between Round Lake and Lovejoy Lake.
This well-maintained property offers three bedrooms and two full baths, featuring warm wood finishes and classic cabin character throughout.
The main level includes an inviting living area with a wood stove, an open layout, and access to a large screened porch, covered porch, and expansive deck with scenic views.
The full walkout lower level provides additional living space and storage options.
Exterior amenities include a three-car detached garage, a well-built wood shed, and generous outdoor areas for recreation and relaxation.
The property is within walking distance of Lakeview Golf Course and only minutes from Round Lake, offering convenient access to local amenities and outdoor activities.
A rare opportunity to own a quality timber-frame home in a desirable Northwoods setting.
Schools
Utilities
Property Amenities and Appliances
- Arts & Entertainment
-
Timber Trail Lodge (0.96 mi)Exceptional 1 reviews
-
Grand Pines Resort (1.41 mi)Fair 3 reviews
-
Round Lake Marina (1.71 mi)Exceptional 4 reviews
-
Golden Rule Resort & Motel (1.68 mi)Average 3 reviews
- Automotive
-
Round Lake Marina (1.71 mi)Exceptional 4 reviews
-
Mels Outdoor Power (3.53 mi)Exceptional 4 reviews
-
Lake Time Boats (3.46 mi)Fair 3 reviews
-
Faceted Glass (3.72 mi)0 reviews
- Education
-
Great Lakes Higher Education (2.24 mi)0 reviews
-
Lco Head Start (5 mi)0 reviews
-
Lac Courte Oreilles Ojibwe School (5.46 mi)0 reviews
-
Lco School Motor Pool (5.46 mi)0 reviews
- Food
-
Lakeview Golf & Pizza (0.36 mi)0 reviews
-
Lakeview Golf & Pizza (0.36 mi)Average 10 reviews
-
Powell's on Round Lake (1.45 mi)Good 18 reviews
-
Dj's Dock (1.8 mi)Good 5 reviews
Mortgage Calculator
-
Down Payment
-
Loan Amount
-
Monthly Mortgage Payment








